Project Domus Living Houthaven
- Huurprijzen p/mndVan €1.500 tot €2.000
- Beschikbare woningen bekijken
- 40 - 60 m²
- Gemiddeld 7 woningen per maand beschikbaar
- Bouwjaar 2022
- Vrije sector
- 3 x de maandhuur als inkomensnorm
De inkomensnorm is een richtlijn die verhuurders gebruiken om te bepalen of je het maandelijkse huurbedrag financieel kunt dragen. Het helpt zowel huurder als verhuurder om te zorgen dat de woonlasten verantwoord zijn ten opzichte van het inkomen.
Hoe werkt het?
Hiernaast zie je de norm voor de woningen in het project. x keer de maandhuur houdt dus in dat je bruto maandinkomen minimaal x keer de maandelijks te betalen kale huurprijs is.
Gezamenlijk inkomen
Als je met een partner huurt, worden jullie inkomens bij elkaar opgeteld. Het tweede inkomen wordt 100% meegeteld.
Waarom is dit belangrijk?
De inkomensnorm voorkomt dat je een woning huurt die financieel niet past bij je situatie. Verhuurders zijn bovendien wettelijk verplicht om verantwoord te verhuren.
In de Houthavens gaan stoere industriële roots, moderne architectuur en levendige horeca hand in hand. Een unieke plek waar creativiteit bloeit en het centrum altijd dichtbij is.
LET OP
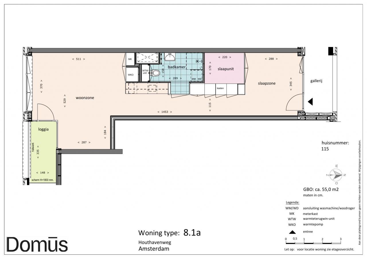
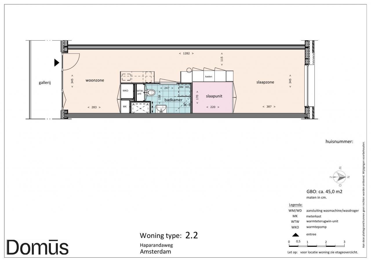
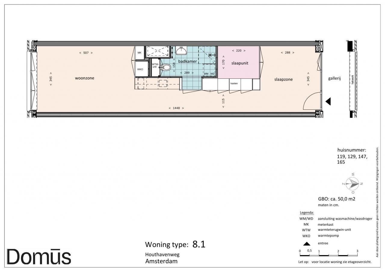
Het getoonde beeldmateriaal is bedoeld om je een indruk te geven van de woning.
Omdat dit beeldmateriaal van een vergelijkbare woning kan zijn, kunnen de indeling, afwerking en afmetingen in de werkelijkheid afwijken. Controleer daarom altijd goed het specifieke woningtype én de details in de advertentie. De plattegrond van de woning is leidend en zou overeen moeten komen met de Type die vermeld staat bij de Kenmerken.
Er kunnen geen rechten aan deze informatie worden ontleend.
Domūs Houthaven – Smart city living met stijl
Welkom bij Domūs Houthaven, een woonconcept dat wonen in Amsterdam een frisse draai geeft. Aan de Haparandaweg en Houthavenweg, op een steenworp van het IJ, Westerpark en de Spaarndammerbuurt, vind je 235 slimme huurappartementen die compact zijn, maar groots aanvoelen. Elk appartement is voorzien van een ‘smart living core’: een slimme combinatie van keuken, badkamer, opbergruimte én bedframe in één – ontworpen voor comfort en gemak.
Een slimme woning
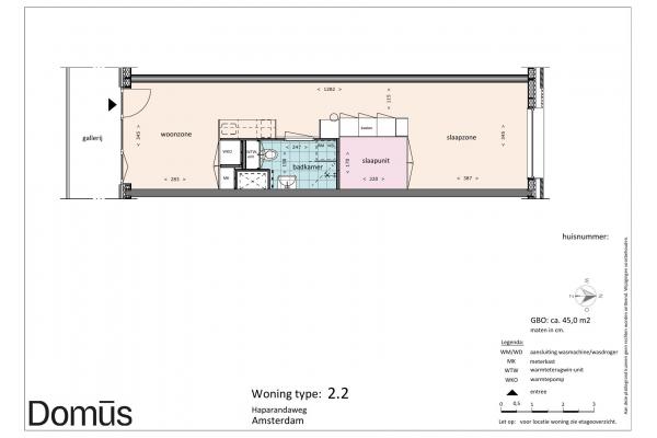
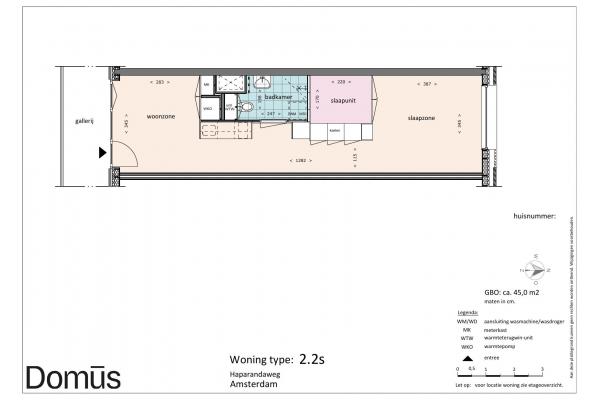
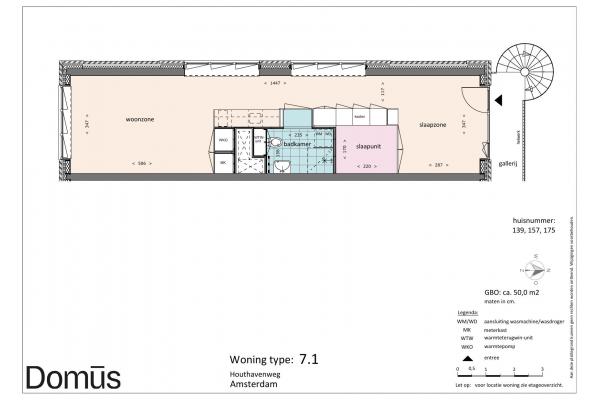
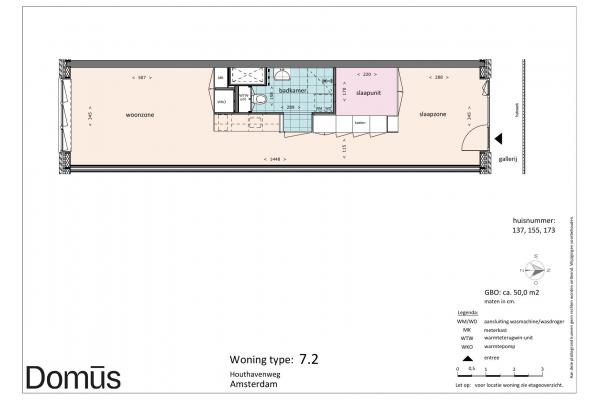
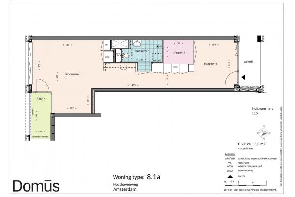
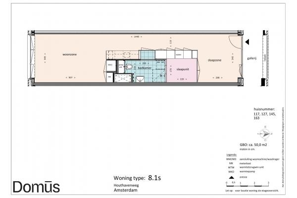
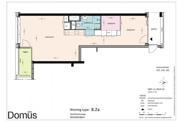
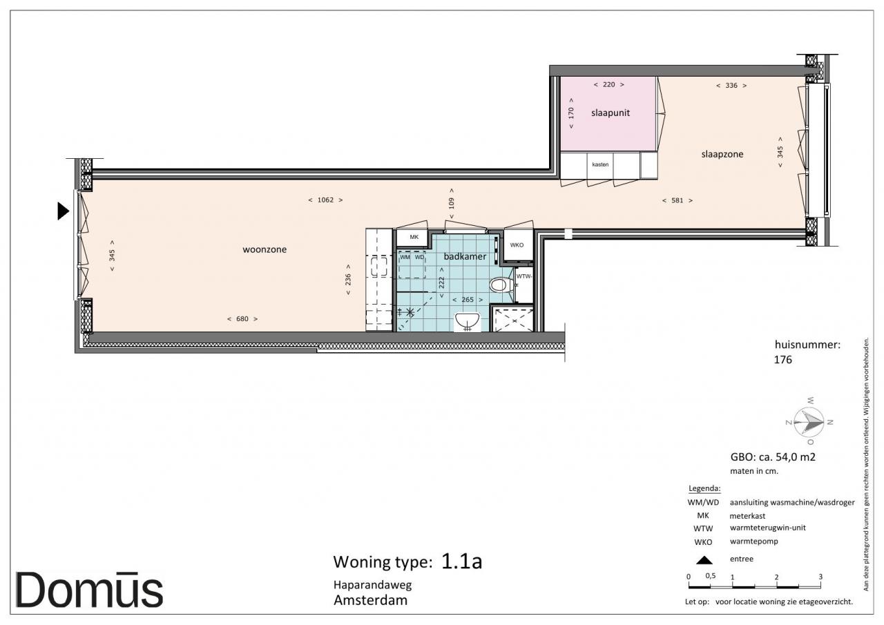
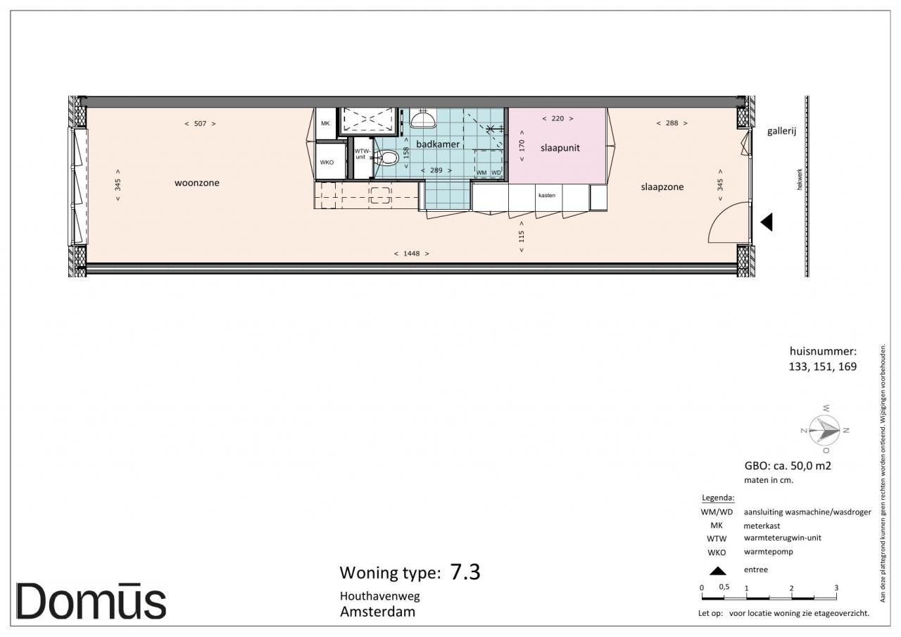
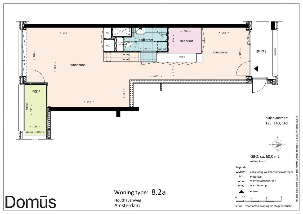
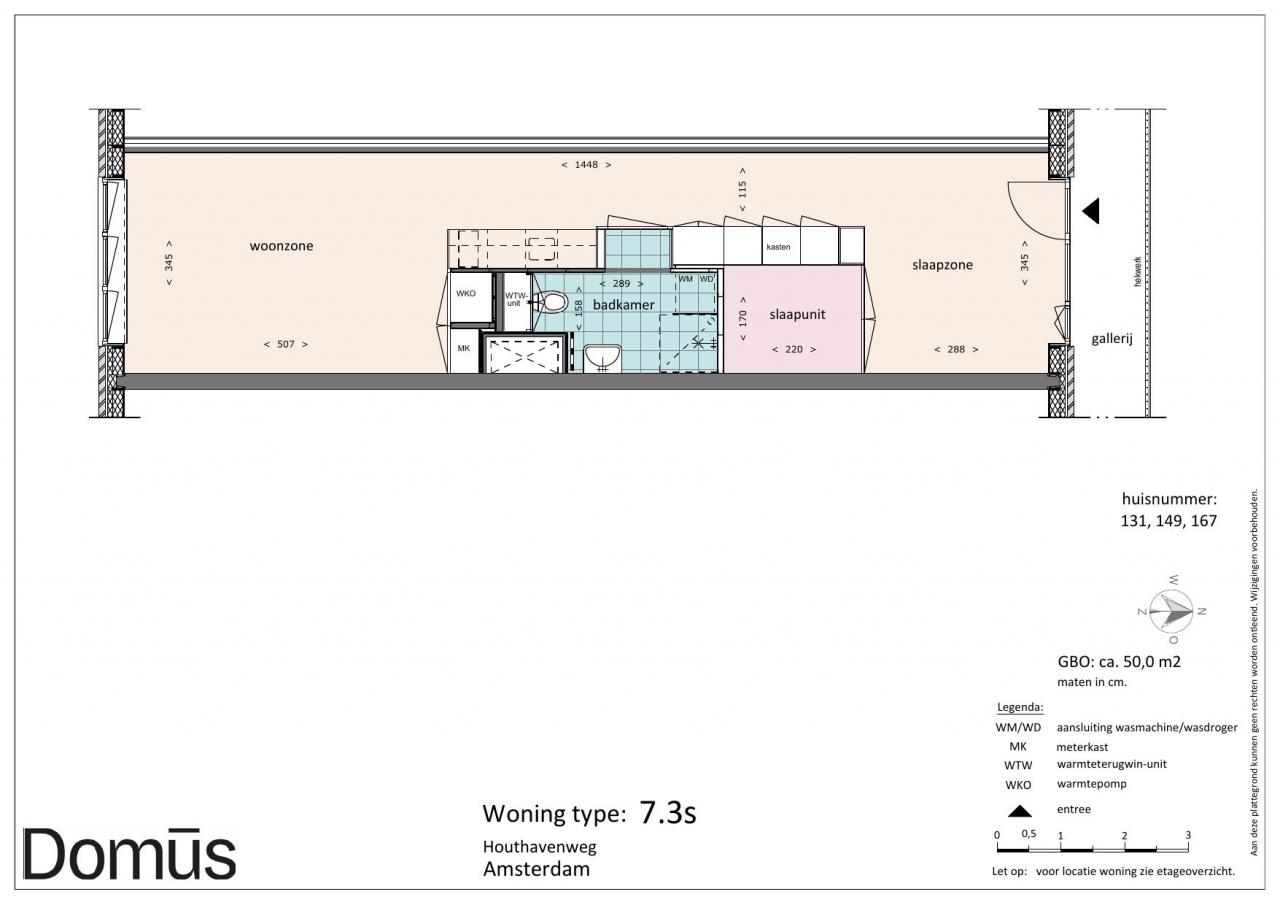
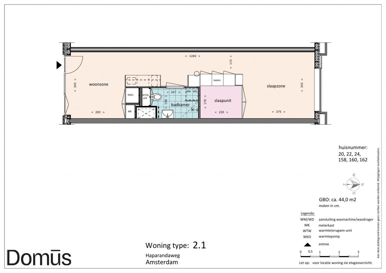
Domūs Houthaven kent een diversiteit aan appartementen. Variërend van 40 m² tot 60 m². Alle woningen zijn voorzien van een vaste PVC-vloer, gordijnen en de ‘smart living core’ met keuken, badkamer, kasten, en bedframe. Zo klaar om in te trekken.
- PVC vloer is altijd aanwezig.
- Plafond verlichting aanwezig (spots)
- Gordijnen aanwezig
- zijn wit en/of gekleurd
- aanrechtblad grijs kunststof
- aanrechtverlichting is aanwezig
- koelkast onderbouw met vriesvak merk ATAG type KU1190B
- kookplaat merk ATAG type inductie breedte 60 cm
- vlakscherm afzuigkap merk ATAG type WV6211AM breedte 60 cm, RVS
- vaatwasser merk ATAG type VA2113PT
- combimagnetron merk ATAG type CX14411A
- kranen merk Grohe
- sanitair merk Geberit
- kranen /douchegarnituur merk Grohe
- design radiator merk Zehnder
- wasmachine aansluiting
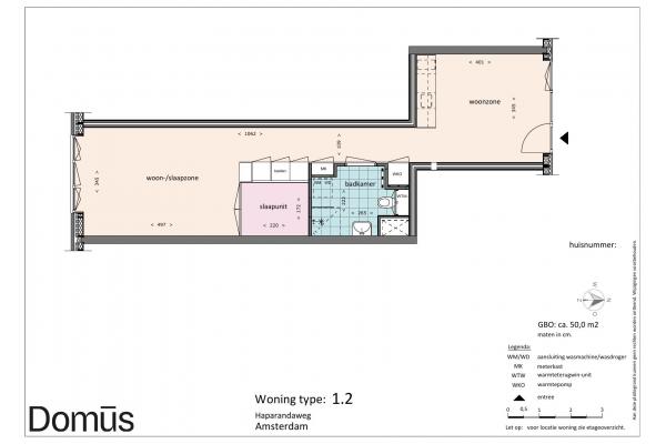
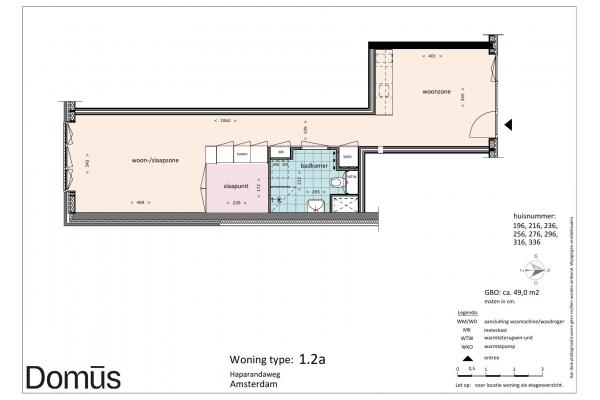
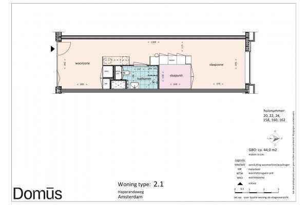
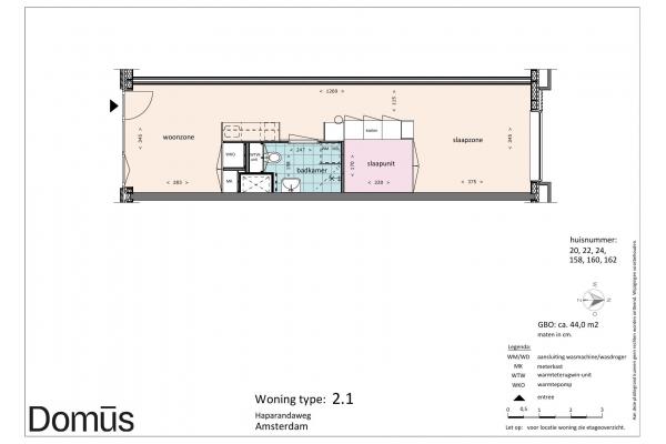
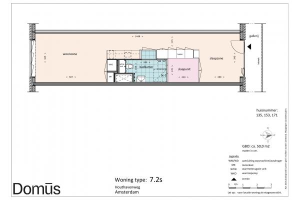
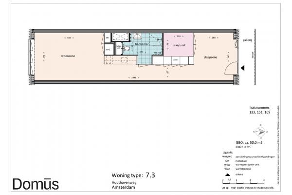
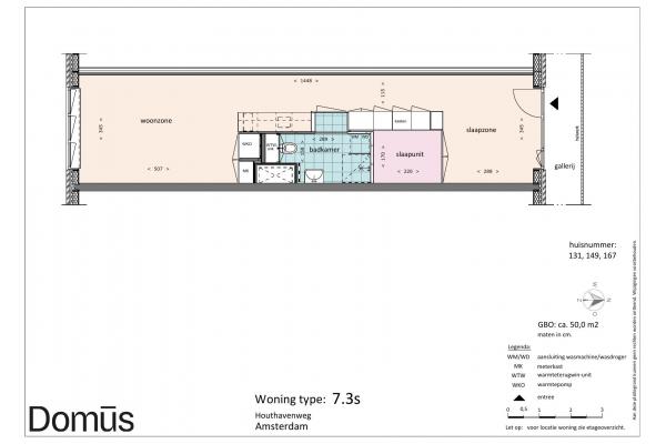
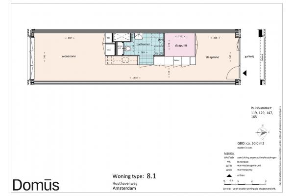
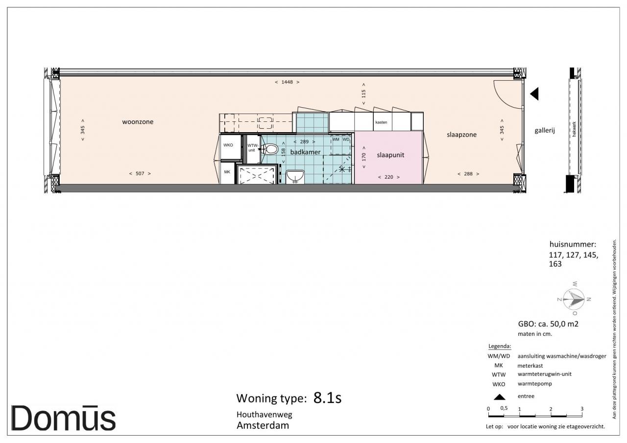
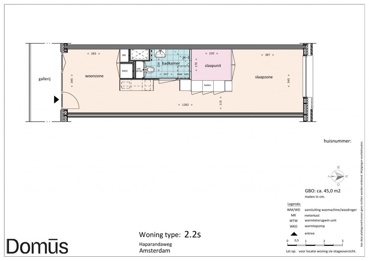
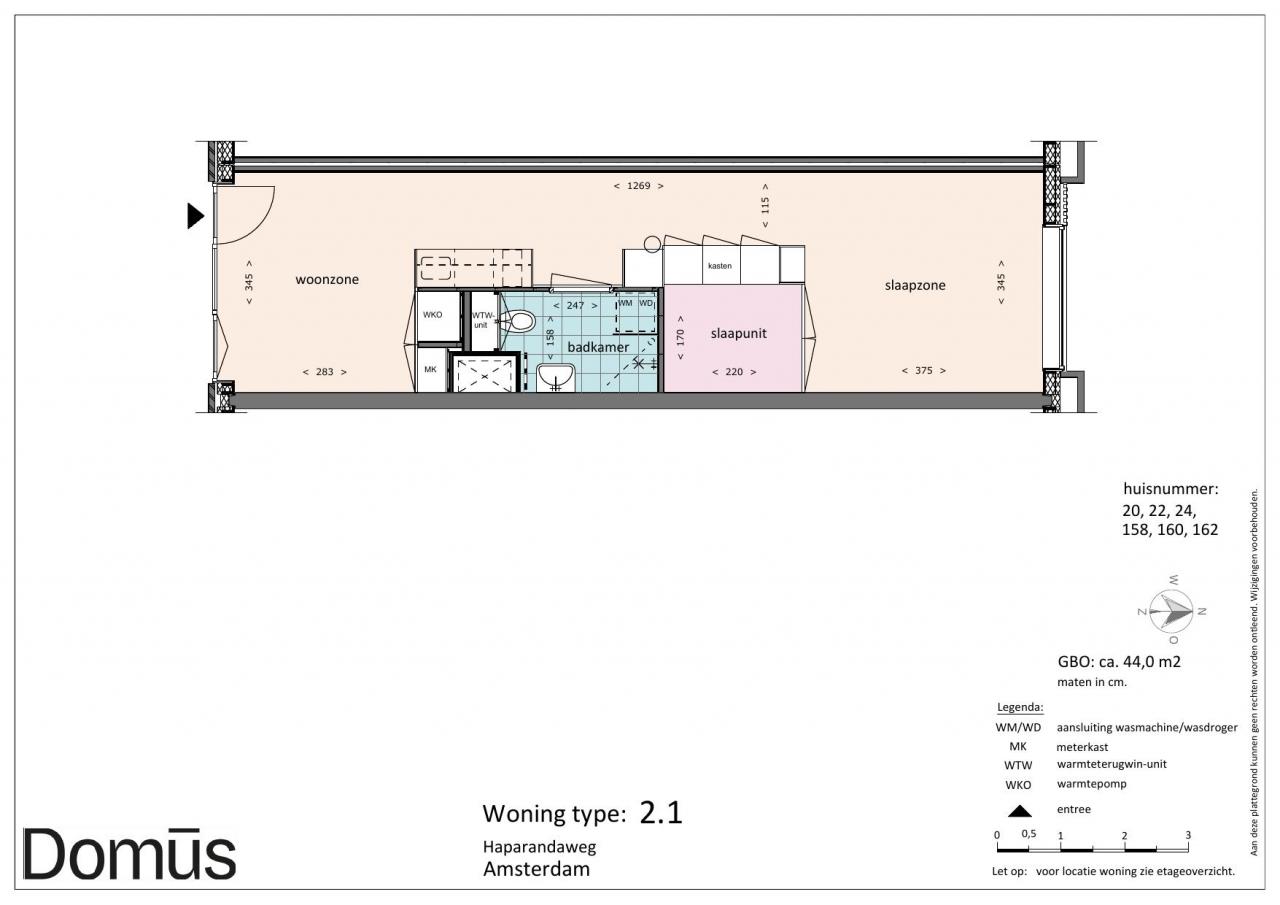
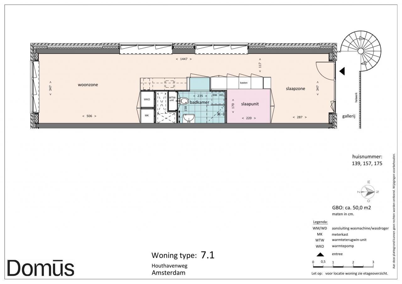
- Het bedframe is 160x200 of 180x200 cm. Welke maat in de specifieke woning van toepassing is, kan je afleiden van de plattegrond.
- Slaapunit 190x220 cm, heeft matras maat 180x200 cm
- Slaapunit 170x220 cm, heeft matras maat 160x200 cm
Wat Domūs écht bijzonder maakt, is de mix van privacy én community. Naast je eigen woonruimte heb je toegang tot gedeelde leefruimtes zoals een gezellige woonkamer, een volledig uitgeruste kookstudio, een groene daktuin, een logeerkamer voor bezoek én een handige Laundry Boutique waar je snel en gemakkelijk je was kunt doen. Alles is ontworpen om wonen in de stad leuker, makkelijker en socialer te maken.
Domūs app
De woonoplossingen van morgen gaan verder dan gebouwen. Als service-brand zijn we constant bezig met het verbeteren van het dagelijks leven van bewoners en onze omgeving.
- Huren deelmobiliteit
- Deelnemen evenementen
- Lokale ondernemers en hotspots
- Afsluiten TV- en internetabonnement
- Afsluiten verzekeringen
- Afsluiten energiecontract
- Hurenmeubilair
- Inzien huurcontract
- Indienen reparatieverzoek
De ligging
Ideaal. Met uitstekende OV-verbindingen en de ring A10 om de hoek, zit je zó in de binnenstad of juist de stad uit. Je woont hier in een dynamische buurt met creatieve bedrijven, leuke koffiebars, restaurants en volop ruimte om te wandelen, sporten of tot rust te komen aan het water.
Domūs is duurzaam tot in de kern: energiezuinig (label A++) future-proof en ontworpen met slimme, modulaire inbouwoplossingen. Daarmee wordt niet alleen ruimte, maar ook materiaalgebruik geoptimaliseerd. Hier woon je comfortabel én verantwoord.
Domūs Houthaven – voor iedereen die slim, stijlvol en zorgeloos wil wonen in Amsterdam.

Modern wonen aan het water op zijn best. Waar het water je speeltuin is en de creatieve stad je achtertuin.
De Haparandaweg en Houthavenweg vormen de centrale aders van de Houthavens in Amsterdam, een opvallend voormalig havengebied dat is getransformeerd tot een moderne en duurzame woon- en werkwijk. Het gebied ligt aan de westzijde van het centrum, direct aan het IJ, en is opgebouwd uit verschillende schiereilanden die de maritieme geschiedenis van de locatie benadrukken. De wijk kenmerkt zich door een strakke, hedendaagse architectuur die zich mengt met de robuuste sfeer van de vroegere haven. Deze specifieke locatie profiteert van de nabijheid van de ring A10 en station Sloterdijk, wat zorgt voor uitstekende verbindingen met de rest van de stad en daarbuiten. Daarnaast liggen het centrum van Amsterdam en de Jordaan op comfortabele fietsafstand.
Voorzieningen in de buurt...
| Huisarts | Huisartsenpraktijk Spaarndammerhout | ~ 750 m |
| Apotheek | Service Apotheek Spaarndammerhout | ~ 800 m |
| Supermarkt | Albert Heijn (Spaarndammerstraat) | ~ 650 m |
| Recreatie | Houthavenpark & zwemwater | ~ 50 m |
| Westerpark | ~ 900 m | |
| Parkeren | Eigen parkeergarage (Domus Living) | Op locatie |
| Parkeergarage Houthaven (openbaar) | ~ 200 m | |
| Openbaar Vervoer (OV) | Bushalte Haparandaweg | ~ 150 m |
| Pontsteiger (veer naar NDSM/Noord) | ~ 600 m | |
| Tramhalte Haarlemmerplein | ~ 1500 m |
Wie mag er wonen in Domus Living Houthaven?



Meest gestelde vragen
Kom ik in aanmerking?
De makkelijkste manier om dit te weten te komen, is met een Gratis Account! Start hier, vul je profiel helemaal in en voeg de woningen die je leuk vindt toe en vul ook je zoekprofiel in. Het systeem laat dan direct zien of het past.
Hoe kan ik deze woningen bezichtigen?
Wij werken met Open Huizen, waar ook jij van harte welkom bent. Je wordt automatisch hiervoor uitgenodigd als we je gegevens hebben. Hier lees je alles wat je moet weten, zodat jij er helemaal klaar voor bent. We hopen je snel te zien! :)
Hoe kan ik reageren/huren?
Door naar het (online) open huis te komen en/of na het open huis de 3 cijferige code in te vullen en de Datakeeper controle uit te voeren. Hierna ontvang je automatisch een huurvoorstel en als je aan de beurt bent, sturen we je snel de huurovereenkomst. Hier lees je uitgebreide info over het hele proces.









































